物件情報
新築一戸建て
高槻市野田3丁目
[260324]
阪急京都本線 高槻市駅 徒歩25分
阪急京都本線 高槻市駅 バス乗車17分、六中前停 徒歩6分
3,935万円
(土地)78.01㎡
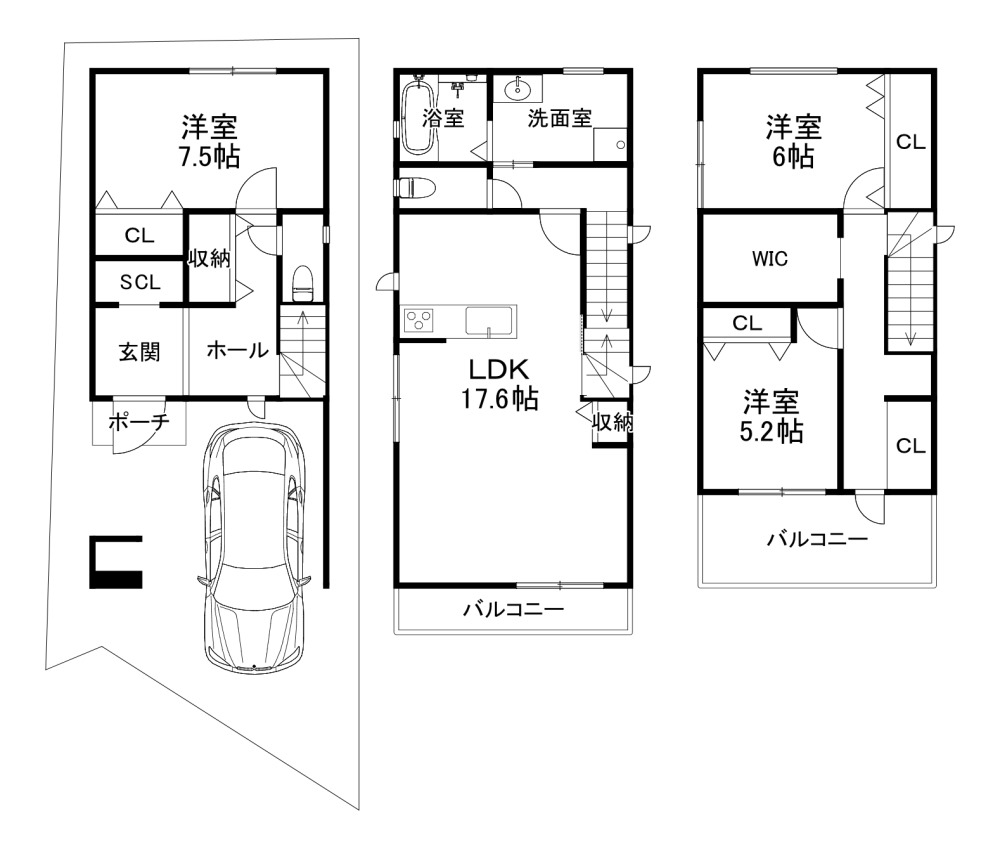
(建物)125.55㎡ / 3LDK
未完成
セールスポイント
★土地面積78.01平米(約23.59坪)!★2階LDK約17.6帖!外からの視線が気になりません!★収納充実!全居室に収納完備!★三方空き&南西向きのため日当たり良好!★「六中前」バス停より徒歩6分!★北大冠小学校・第六中学校校区!
間取り図

物件詳細
| 物件種別 | 新築一戸建て |
|---|---|
| 名称 | 新築戸建 |
| 現況 | 未完成 |
| 土地面積 | 78.01㎡ |
| 建物面積/専有面積 | 125.55㎡ |
| 私道負担 | 0㎡ |
| 建物構造 | 木造 |
| 階数 | 3階建て |
| 間取り | 3LDK |
| 築年数 | 新築 |
|---|---|
| 建ぺい率/容積率 | 60%/200% |
| 地目 | 宅地 |
| 用途地域 | 第一種住居地域 |
| 管理費 | |
| 修繕積立金 | |
| 設備 | |
| こだわり条件 | |
| 備考 | 取引態様:媒介 |
お問い合わせ
この物件のお問い合わせは、下記事項をご記入のうえ「入力内容のご確認」ボタンをクリックしてください



