物件情報
新築一戸建て
高槻市古曽部町3丁目
[260278]
JR東海道本線 高槻駅 バス乗車7分、古曽部台停 徒歩4分
JR東海道本線 高槻駅 徒歩19分
5,480万円
(土地)83.66㎡
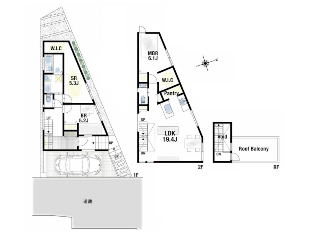
(建物)100.07㎡ / 2LDK
未完成
セールスポイント
★2SLDKの新築戸建!★土地面積83.66平米(約25.30坪)!★間口広々8.4m!★2階LDKでプライバシー確保!広々19.4帖!★収納充実!各居室に収納完備!★トイレ2か所!★「古曽部台」バス停より徒歩4分!★奥坂小学校・第八中学校校区!
間取り図

物件詳細
| 物件種別 | 新築一戸建て |
|---|---|
| 名称 | 新築戸建 |
| 現況 | 未完成 |
| 土地面積 | 83.66㎡ |
| 建物面積/専有面積 | 100.07㎡ |
| 私道負担 | 0㎡ |
| 建物構造 | 木造 |
| 階数 | 2階建て |
| 間取り | 2LDK |
| 築年数 | 新築 |
|---|---|
| 建ぺい率/容積率 | 60%/160% |
| 地目 | 宅地 |
| 用途地域 | 第一種中高層住居専用地域 |
| 管理費 | |
| 修繕積立金 | |
| 設備 | |
| こだわり条件 | 2階建て |
| 備考 | ※取引態様:媒介 |
お問い合わせ
この物件のお問い合わせは、下記事項をご記入のうえ「入力内容のご確認」ボタンをクリックしてください



