物件情報
中古一戸建て
高槻市淀の原町
[260266]
阪急京都本線 上牧(大阪)駅 徒歩12分
JR東海道本線 島本駅 徒歩20分
2,950万円
(土地)106.26㎡
(建物)97.63㎡ / 3LDK
平成2年8月 建築
セールスポイント
★3LDKの中古戸建!★土地面積106.26平米(約32.14坪)!★南向きで日当たり良好!★事務所兼住居としても利用可能!★ルーフバルコニー付き!★リフォーム履歴多数!★駐車スペース3台分!★阪急上牧駅より徒歩12分!★上牧小学校・五領中学校校区!
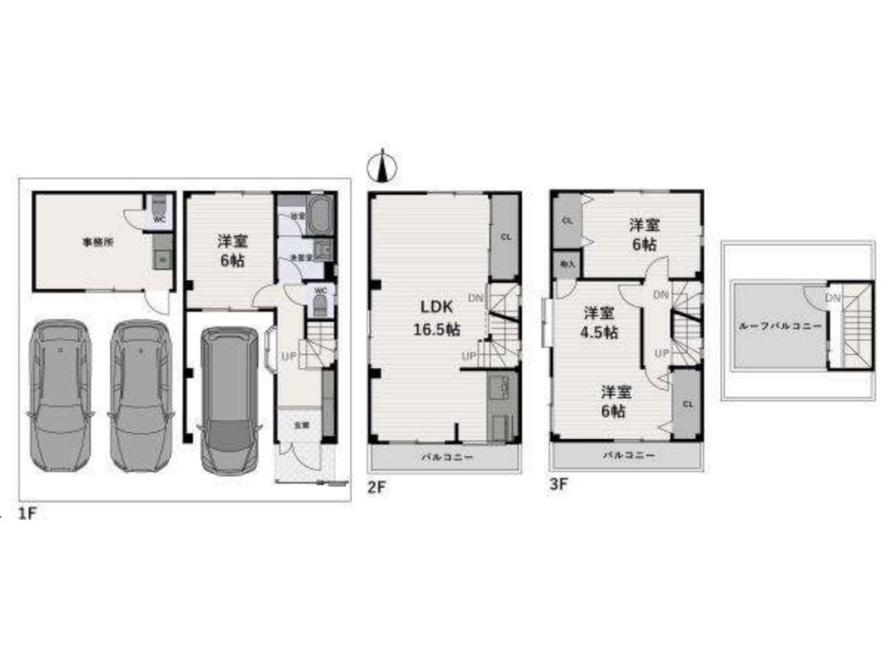
間取り図

物件詳細
| 物件種別 | 中古一戸建て |
|---|---|
| 名称 | 中古戸建 |
| 現況 | 空家 |
| 土地面積 | 106.26㎡ |
| 建物面積/専有面積 | 97.63㎡ |
| 私道負担 | 0㎡ |
| 建物構造 | 鉄骨造 |
| 階数 | 3階建て |
| 間取り | 3LDK |
| 築年数 | 平成2年8月 建築 |
|---|---|
| 建ぺい率/容積率 | 60%/200% |
| 地目 | 宅地 |
| 用途地域 | 第一種中高層住居専用地域 |
| 管理費 | |
| 修繕積立金 | |
| 設備 | |
| こだわり条件 | 南向き/ガレージ2台以上 |
| 備考 | ※取引態様:媒介 |
お問い合わせ
この物件のお問い合わせは、下記事項をご記入のうえ「入力内容のご確認」ボタンをクリックしてください



