物件情報
中古一戸建て
高槻市唐崎中1丁目
[260225]
京阪本線 枚方市駅 バス乗車13分、唐崎停 徒歩5分
1,980万円
(土地)1576.85㎡
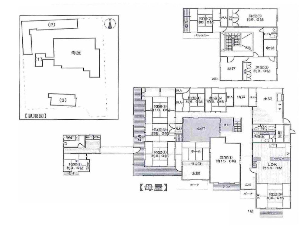
(建物)400.16㎡ / 4LDK以上
昭和61年12月 建築
セールスポイント
★土地面積1576.85平米(約476.99坪)!★建物面積400.16平米(121.04坪)!★建替用地としてだけでなく、宿泊施設や別荘にも利用できます!★南向きで日当たり良好!★「唐崎」停より徒歩5分!★三箇牧小学校・第七中学校校区!
間取り図

物件詳細
| 物件種別 | 中古一戸建て |
|---|---|
| 名称 | 中古戸建 |
| 現況 | 空家 |
| 土地面積 | 1576.85㎡ |
| 建物面積/専有面積 | 400.16㎡ |
| 私道負担 | 0㎡ |
| 建物構造 | 木造 |
| 階数 | 2階建て |
| 間取り | 4LDK以上 |
| 築年数 | 昭和61年12月 建築 |
|---|---|
| 建ぺい率/容積率 | 60%/200% |
| 地目 | 宅地 |
| 用途地域 | 指定なし |
| 管理費 | |
| 修繕積立金 | |
| 設備 | |
| こだわり条件 | 2階建て/南向き |
| 備考 | ※取引態様:媒介 |
お問い合わせ
この物件のお問い合わせは、下記事項をご記入のうえ「入力内容のご確認」ボタンをクリックしてください



