物件情報
中古一戸建て
高槻市川添2丁目
[260141]
阪急京都本線 富田(大阪)駅 バス乗車11分、富田団地東停 徒歩4分
JR東海道本線 摂津富田駅 バス乗車11分、富田団地東停 徒歩4分
3,286万円
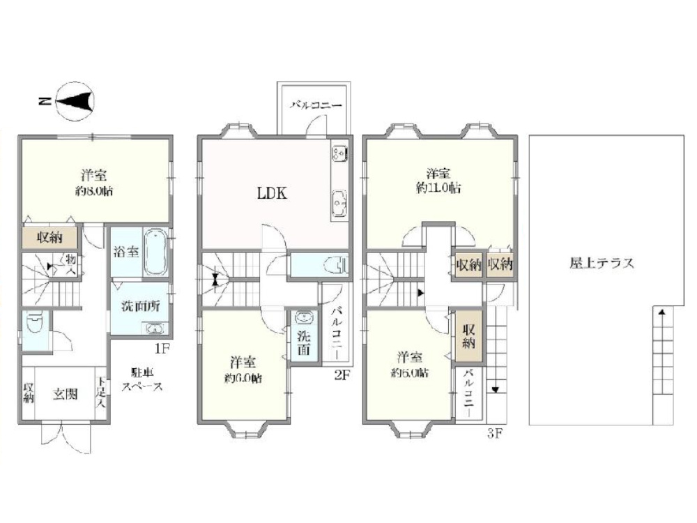
(土地)93.79㎡
(建物)129.1㎡ / 4LDK以上
平成5年11月 建築
セールスポイント
★4LDKの中古戸建!★開放感抜群の屋上テラス付き!★土地面積93.79平米(約28.37坪)!★2025年12月リフォーム完成!★トイレ2か所!★現況空き家につき即時引渡し可!★「富田団地東」バス停より徒歩4分!★芝生小学校・柳川中学校校区!
間取り図

物件詳細
| 物件種別 | 中古一戸建て |
|---|---|
| 名称 | 中古戸建 |
| 現況 | 空家 |
| 土地面積 | 93.79㎡ |
| 建物面積/専有面積 | 129.1㎡ |
| 私道負担 | 0㎡ |
| 建物構造 | 鉄骨造 |
| 階数 | 3階建て |
| 間取り | 4LDK以上 |
| 築年数 | 平成5年11月 建築 |
|---|---|
| 建ぺい率/容積率 | 60%/200% |
| 地目 | 宅地 |
| 用途地域 | 第一種中高層住居専用地域 |
| 管理費 | |
| 修繕積立金 | |
| 設備 | |
| こだわり条件 | |
| 備考 | ※取引態様:媒介 |
お問い合わせ
この物件のお問い合わせは、下記事項をご記入のうえ「入力内容のご確認」ボタンをクリックしてください




