物件情報
新築一戸建て
高槻市若松町
[251226]
阪急京都本線 高槻市駅 徒歩27分
4,280万円
(土地)59.27㎡
(建物)77.44㎡ / 3DK
未完成
セールスポイント
★3DK+Sの新築戸建!★土地面積59.27平米(約17.92坪)!★北西角地で通風良好!★収納充実!各居室に収納完備!★トイレ2か所!★生活施設充実!最寄りのスーパーまで徒歩3分!★阪急高槻市駅より徒歩27分!★若松小学校・城南中学校校区!
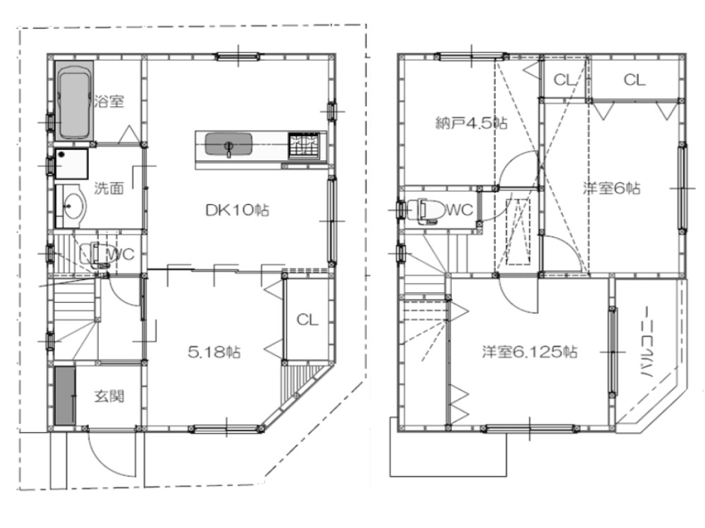
間取り図

物件詳細
| 物件種別 | 新築一戸建て |
|---|---|
| 名称 | 新築戸建 |
| 現況 | 未完成 |
| 土地面積 | 59.27㎡ |
| 建物面積/専有面積 | 77.44㎡ |
| 私道負担 | 0㎡ |
| 建物構造 | 木造 |
| 階数 | 2階建て |
| 間取り | 3DK |
| 築年数 | 新築 |
|---|---|
| 建ぺい率/容積率 | 60%/200% |
| 地目 | 宅地 |
| 用途地域 | 準工業地域 |
| 管理費 | |
| 修繕積立金 | |
| 設備 | |
| こだわり条件 | 2階建て/角地・角部屋 |
| 備考 | ※取引態様:媒介。 ※建築確認番号:第REJ25411-36046号。 |
お問い合わせ
この物件のお問い合わせは、下記事項をご記入のうえ「入力内容のご確認」ボタンをクリックしてください



