物件情報
中古マンション
高槻市上土室1丁目
阪急ヒルズコート高槻アネックス
[251143]
JR東海道本線 摂津富田駅 バス乗車10分、上土室停 徒歩3分
2,200万円
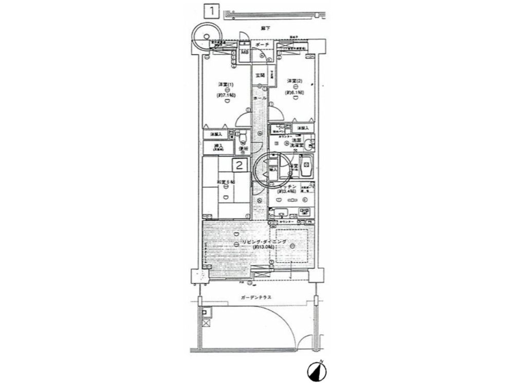
(建物)77.34㎡ / 3LDK
平成11年2月 建築
セールスポイント
★7階建ての1階部分!★専有面積77.34平米(約23.39坪)!★専用庭付き!南東向きで日当たり良好!★生活施設充実!徒歩10分圏内にスーパー・ドラッグストア・病院あります!★「上土室」バス停より徒歩3分!★土室小学校・阿武山中学校校区!
間取り図

物件詳細
| 物件種別 | 中古マンション |
|---|---|
| 名称 | 中古マンション |
| 現況 | 空室 |
| 土地面積 | |
| 建物面積/専有面積 | 77.34㎡ |
| 私道負担 | |
| 建物構造 | RC造 |
| 階数 | 1階/7階建て |
| 間取り | 3LDK |
| 築年数 | 平成11年2月 建築 |
|---|---|
| 建ぺい率/容積率 | |
| 地目 | |
| 用途地域 | 第一種中高層住居専用地域 |
| 管理費 | 4600円 |
| 修繕積立金 | 15470円 |
| 設備 | |
| こだわり条件 | |
| 備考 | ※取引態様:媒介。 ※要フルリフォーム物件。 ※専用庭面積:26.50平米。 ※駐車場代:月額8,000円。 ※専用庭使用料:月額540円。 ※防犯装置費用:月額500円。 |
お問い合わせ
この物件のお問い合わせは、下記事項をご記入のうえ「入力内容のご確認」ボタンをクリックしてください




