物件情報
新築一戸建て
高槻市名神町
[251066]
JR東海道本線 高槻駅 バス乗車10分、緑ヶ丘停 徒歩5分
4,360万円
(土地)94.44㎡
(建物)100.59㎡ /
未完成
セールスポイント
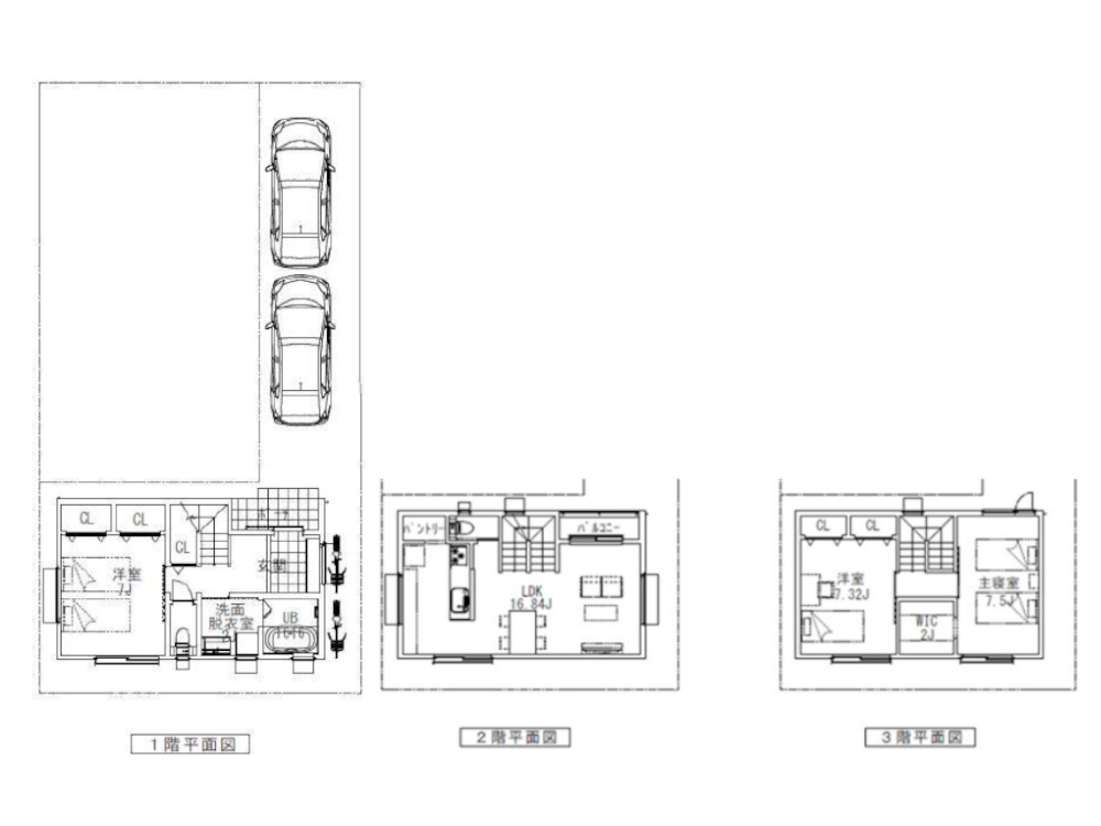
★3LDKの新築戸建!★土地面積94.44平米(28.56坪)!★2階LDKでプライバシー確保!★トイレ2か所!★駐車スペース2台分!★生活施設充実!徒歩10分圏内にスーパー複数!★「緑ヶ丘」バス停より徒歩5分!★真上小学校・第二中学校校区!
間取り図

物件詳細
| 物件種別 | 新築一戸建て |
|---|---|
| 名称 | 新築戸建 |
| 現況 | 未完成 |
| 土地面積 | 94.44㎡ |
| 建物面積/専有面積 | 100.59㎡ |
| 私道負担 | 0㎡ |
| 建物構造 | 木造 |
| 階数 | 3階建て |
| 間取り |
| 築年数 | 新築 |
|---|---|
| 建ぺい率/容積率 | 60%/200% |
| 地目 | 宅地 |
| 用途地域 | 第一種中高層住居専用地域 |
| 管理費 | |
| 修繕積立金 | |
| 設備 | |
| こだわり条件 | ガレージ2台以上 |
| 備考 | ※取引態様:媒介 |
お問い合わせ
この物件のお問い合わせは、下記事項をご記入のうえ「入力内容のご確認」ボタンをクリックしてください



