区画図Compartment

新築一戸建、中古一戸建、中古マンション、土地、高槻市・茨木市の不動産物件を多数取り揃えております。
★高槻市富田町5丁目(5区画)新規分譲開始!
★土地面積約27坪~30坪♪
★阪急京都線 富田駅徒歩約10分!
★JR東海道本線摂津富田駅より徒歩約11分♪
★通勤、通学便利な2WAYアクセス可能!
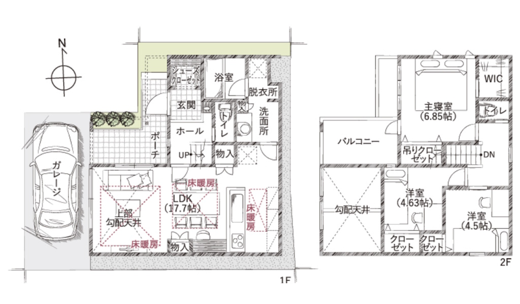
★3LDK~4LDK×ガレージ付き♪
★土地建物セット価格 5,999万円~

| ■所在地 | 高槻市富田町5丁目 |
|---|---|
| ■交 通 | 阪急京都線富田駅より徒歩約10分 / JR東海道本線摂津富田駅より徒歩約11分 |
| ■区画数 | 全5区画 |
| ■土地面積 | 90.20㎡~99.50㎡ |
| ■建物面積 | 94.22㎡~98.63㎡ |
| ■建物構造 | 木造 |
| ■都市計画 | 市街化区域 |
|---|---|
| ■地 目 | 宅地 |
| ■用途地域 | 第二種中高層住居専用地域 |
| ■建ぺい率 | 60% |
| ■容積率 | 200% |
| ■設備環境 | 関西電力・大阪ガス・市営水道・公共下水 |
| ■備考 | 取引態様:媒介 |