区画図Compartment

新築一戸建、中古一戸建、中古マンション、土地、高槻市・茨木市の不動産物件を多数取り揃えております。
★高槻市西五百住町(全13区画)ラスト2邸!
★阪急京都線 富田駅徒歩約9分!
★JR東海道本線摂津富田駅より徒歩約11分♪
★土地面積約33坪~41坪!
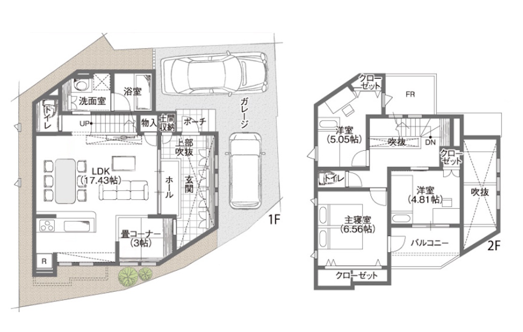
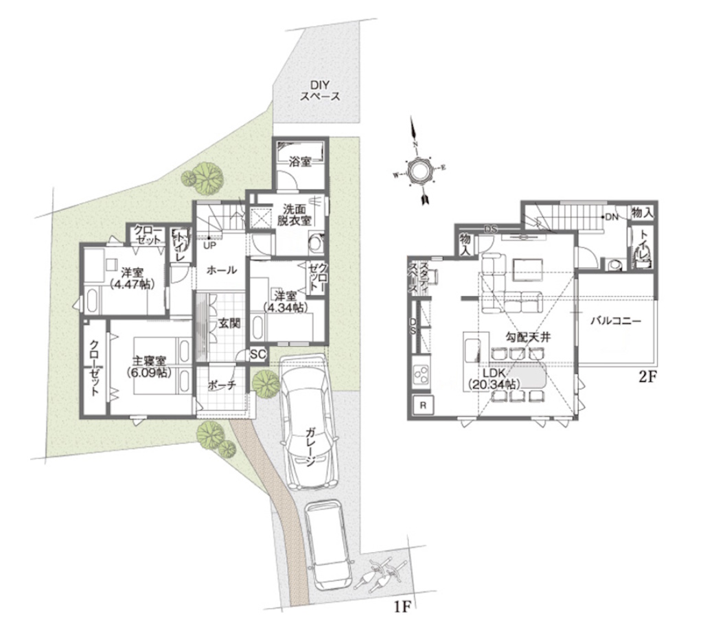
★3LDK+ガレージ駐車2台可能!
★建物完成済みです!
★生活施設充実!
★土地建物セット価格 5,990万円~

| ■所在地 | 高槻市西五百住町 |
|---|---|
| ■交 通 | 阪急京都線 富田駅より徒歩9分 / JR東海道本線 摂津富田駅より徒歩約11分 |
| ■区画数 | 全13区画 |
| ■土地面積 | 109.75㎡~136.46㎡ |
| ■私道負担 | 無 |
| ■建物面積 | 96.16㎡~99.31㎡ |
| ■建物構造 | 木造2階建 |
| ■都市計画 | 市街化区域 |
|---|---|
| ■地 目 | 宅地 |
| ■用途地域 | 第二種中高層住居専用地域 |
| ■建ぺい率 | 60% |
| ■容積率 | 200% |
| ■設備環境 | 関西電力・大阪ガス・市営水道・公共下水 |
| ■備考 | 取引態様:媒介 |