区画図Compartment

新築一戸建、中古一戸建、中古マンション、土地、高槻市・茨木市の不動産物件を多数取り揃えております。
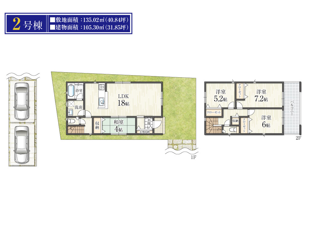
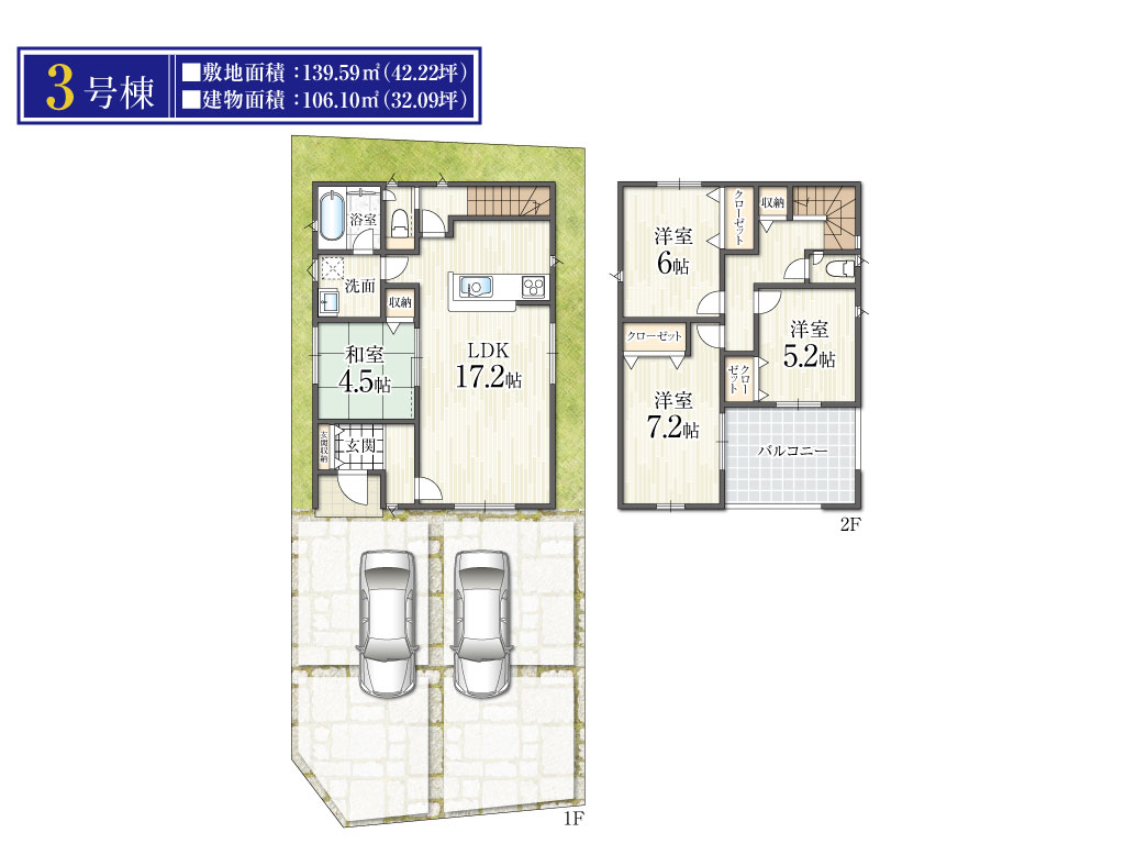
★高槻市野田1丁目(全4区画)新規分譲開始!
★土地面積約35坪~42坪のゆとりの敷地!
★3LDK~4LDK×ガレージ2台♪
★安心の耐震等級3!
★住宅性能評価取得♪
★制振装置SAFE365標準装備!
★子育てグリーン住宅支援事業対象♪
★土地建物セット価格 3,980万円~

| ■所在地 | 高槻市野田1丁目 |
|---|---|
| ■交 通 | 阪急京都線 高槻市駅より徒歩約23分 |
| ■区画数 | 全4区画 |
| ■土地面積 | 117.34㎡~139.59㎡ |
| ■建物面積 | 94.77㎡~106.10㎡ |
| ■建物構造 | 木造2階建て |
| ■都市計画 | 市街化区域 |
|---|---|
| ■地 目 | 宅地 |
| ■用途地域 | 第一種中高層住居専用地域 |
| ■建ぺい率 | 60% |
| ■容積率 | 160% |
| ■設備環境 | 関西電力・大阪ガス・市営水道・公共下水 |
| ■備考 | 取引態様:媒介 |