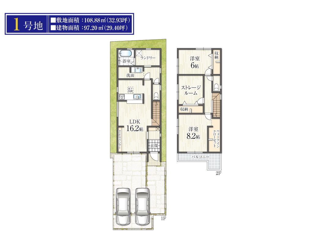
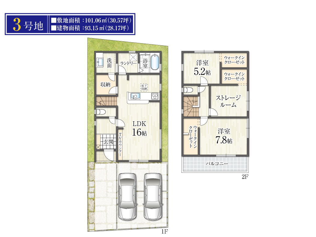
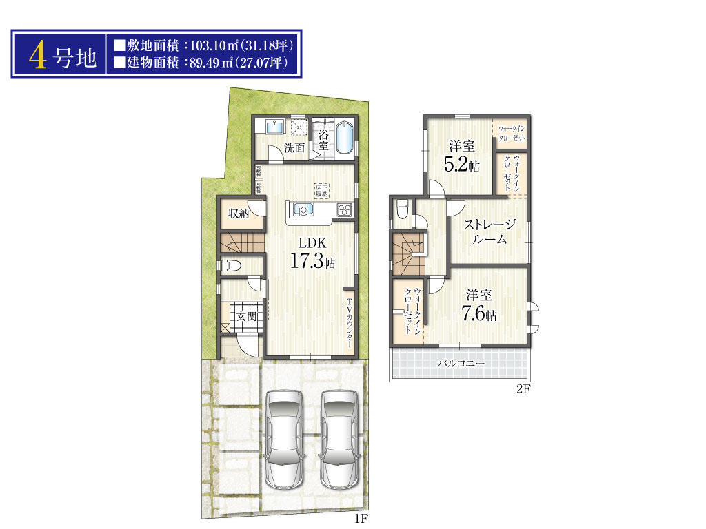
区画図Compartment

新築一戸建、中古一戸建、中古マンション、土地、高槻市・茨木市の不動産物件を多数取り揃えております。
★茨木市島2丁目(全4区画)新規分譲開始!
★土地面積約30坪~33坪のゆとりの敷地!
★3LDK×ガレージ2台♪
★安心安全の長期優良住宅標準仕様♪
★全邸駐車2台可能なスペースを確保♪
★大阪モノレール本線 沢良宜駅徒歩約15分♪
★土地建物セット価格 4,580万円~

| ■所在地 | 茨木市島2丁目 |
|---|---|
| ■交 通 | 大阪モノレール本線 沢良宜駅より徒歩約15分 |
| ■区画数 | 全4区画 |
| ■土地面積 | 101.06㎡~108.88㎡ |
| ■建物面積 | 89.49㎡~97.20㎡ |
| ■建物構造 | 木造2階建て |
| ■都市計画 | 市街化区域 |
|---|---|
| ■地 目 | 宅地 |
| ■用途地域 | 第二種中高層住居専用地域 |
| ■建ぺい率 | 60% |
| ■容積率 | 200% |
| ■設備環境 | 関西電力・大阪ガス・市営水道・公共下水 |
| ■備考 | 取引態様:媒介 |