Loading

新築一戸建、中古一戸建、中古マンション、土地、高槻市・茨木市の不動産物件を多数取り揃えております。

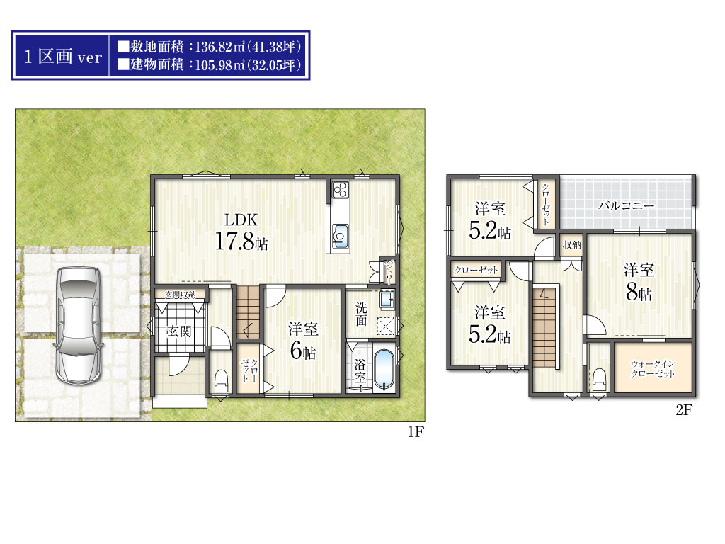
高槻市川西町2丁目

Information

★高槻市川西町2丁目(全2区画)完売致しました!

Sale outline

■所在地 高槻市川西町2丁目
■区画数 全2区画
■都市計画 市街化区域
■地 目 宅地
■用途地域 第二種中高層住居専用地域
ページを閉じる PAGETOP