区画図Compartment

新築一戸建、中古一戸建、中古マンション、土地、高槻市・茨木市の不動産物件を多数取り揃えております。
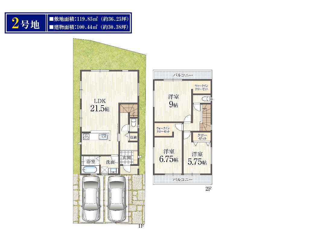
★高槻市宮之川原元町(全4区画)ラスト1邸!
★土地面積約36坪のゆとりの敷地!
★収納充実!全居室に収納完備!ウォークインクローゼット付き!
★駐車スペース2台!
★生活施設が徒歩圏内に揃う便利な立地です!
★土地建物セット価格 3,580万円~3,680万円

| ■所在地 | 高槻市宮之川原元町 |
|---|---|
| ■交 通 | JR東海道本線 高槻駅よりバス乗車約8分、市営バス 服部停より徒歩約3分 |
| ■区画数 | 全4区画 |
| ■土地面積 | 118.92㎡~119.85㎡ |
| ■建物面積 | 98.01㎡~100.44㎡ |
| ■都市計画 | 市街化区域 |
|---|---|
| ■地 目 | 宅地 |
| ■用途地域 | 第一種中高層住居専用地域 |
| ■建ぺい率 | 60% |
| ■容積率 | 200% |
| ■設備環境 | 関西電力・大阪ガス・市営水道・公共下水 |
| ■備考 | 取引態様:媒介 |